Commercial Building Layout Design Using BIM Revit Architecture
At AI Engineers, we specialize in designing precise, efficient, and scalable commercial building layouts using advanced BIM (Building Information Modeling) processes with Autodesk Revit Architecture. This project is a representative example of our commercial architectural planning and execution capabilities, aimed at delivering optimized spatial planning, coordination, and construction documentation for high-performance commercial spaces.
Project Overview
This commercial project involved the architectural layout and BIM modeling for a G+4 commercial office building with mixed-use potential, located in a high-traffic business zone. The building features a structured layout comprising:
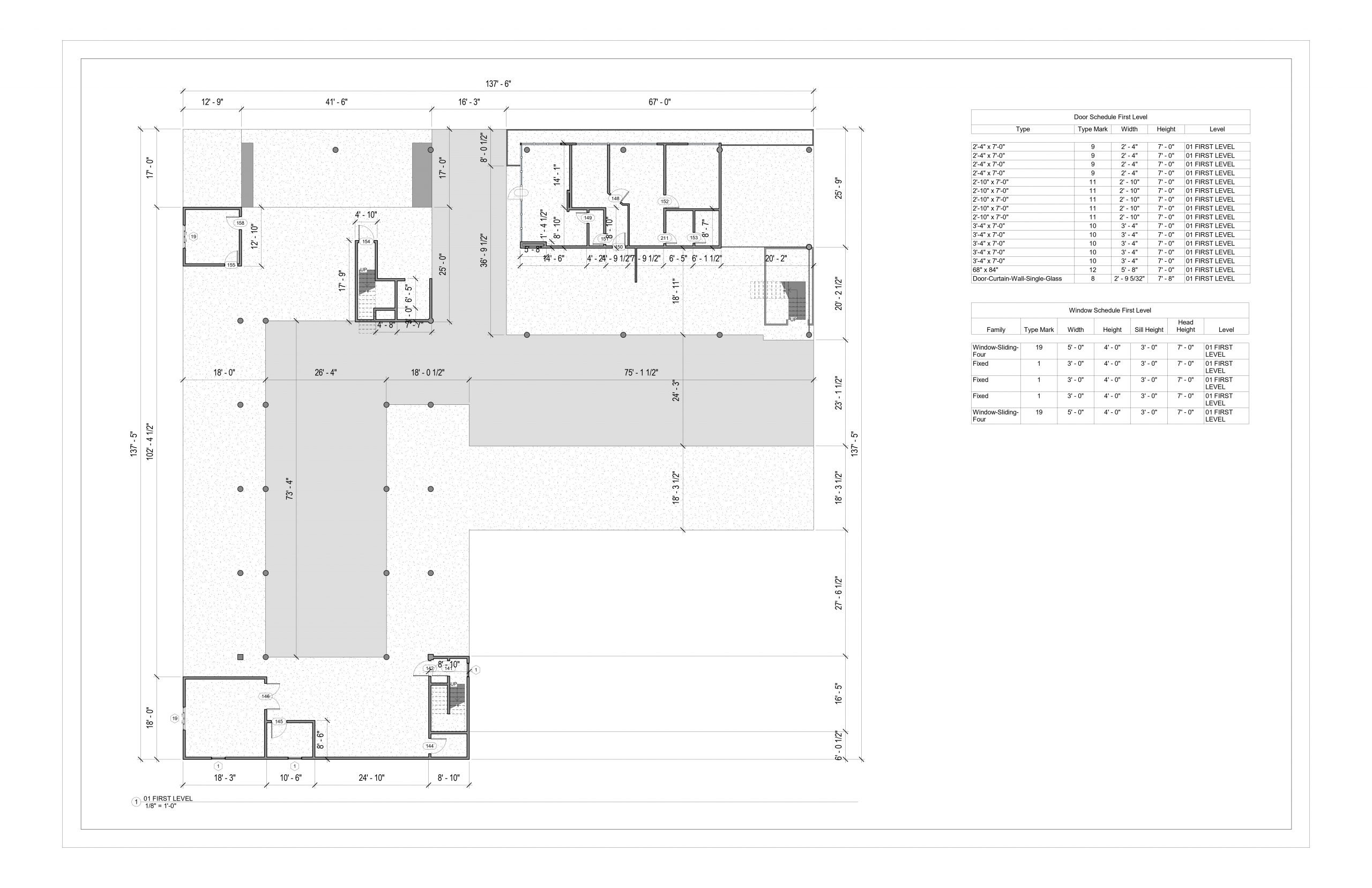
- Ground floor retail outlets
- Flexible office spaces on upper floors
- Core circulation elements (elevators, staircases)
- Common amenities and service shafts
- Façade and structural considerations
- HVAC, plumbing, and electrical spatial planning
Our role was to develop a complete BIM architectural model using Revit, covering concept design to detailed LOD 350/400 drawings, enabling downstream disciplines to coordinate with precision.
Project Objectives
- Optimize spatial efficiency for both leased and owned office formats
- Ensure seamless coordination between architectural, structural, and MEP disciplines
- Create BIM-ready deliverables for quantity take-offs, clash detection, and construction phasing
- Design for future adaptability and sustainability in terms of energy performance and zoning
Project Details
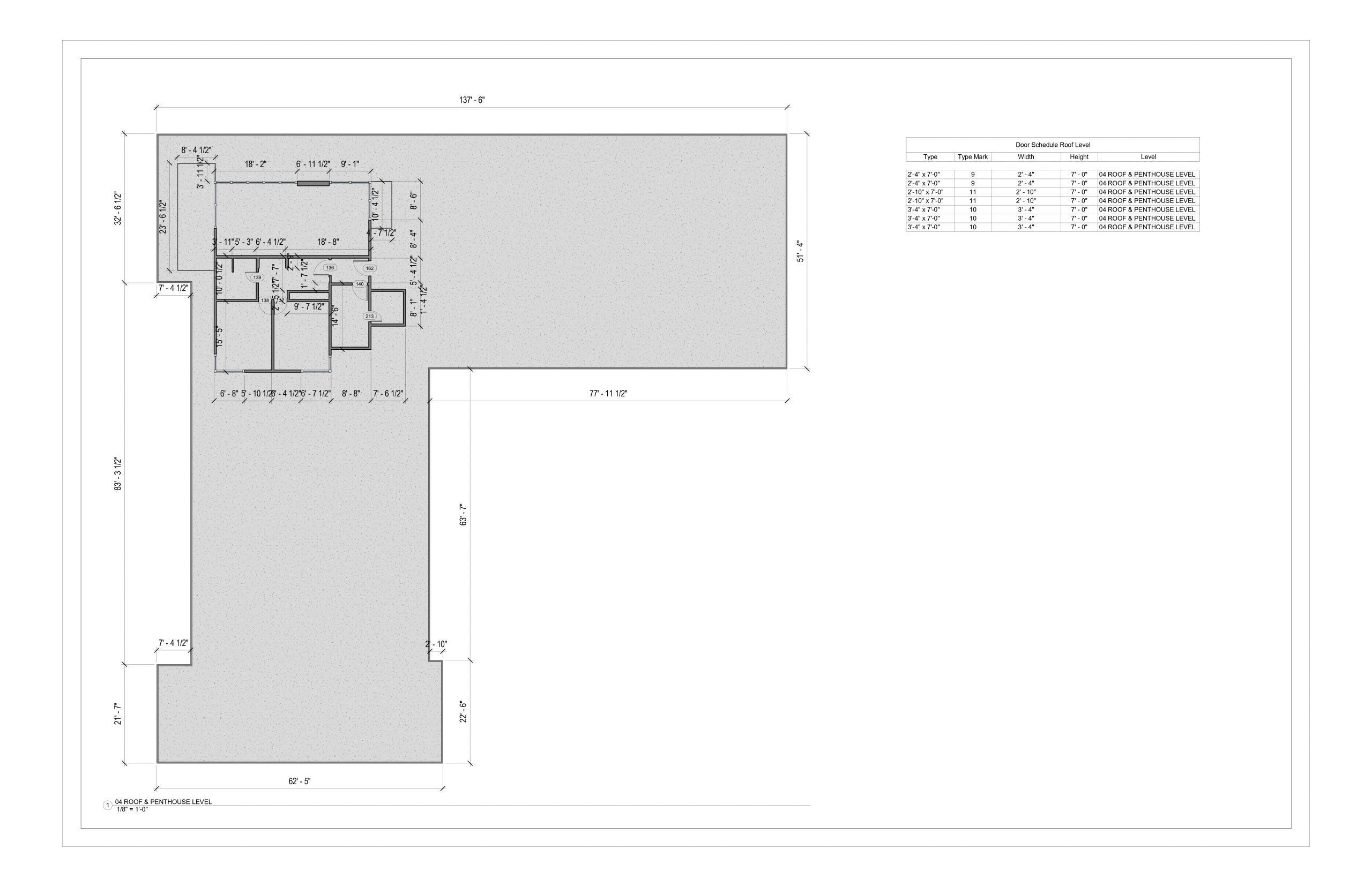
1. Site Planning and Conceptual Layout
The site analysis included urban zoning constraints, FAR utilization, access points, wind/light direction, and setback regulations. The layout was developed to optimize pedestrian access and vehicular flow.
- Entry and exit points aligned with the local municipal road network
- 2.5-meter setbacks maintained on all sides as per local bylaws
- Service zones placed strategically for utility truck access without disrupting customer entry
- Landscaping and external shading elements considered in massing
Using Revit’s site modeling tools, topography and reference levels were set up accurately to begin architectural massing and block layout modeling.
2. Architectural Design and Zoning
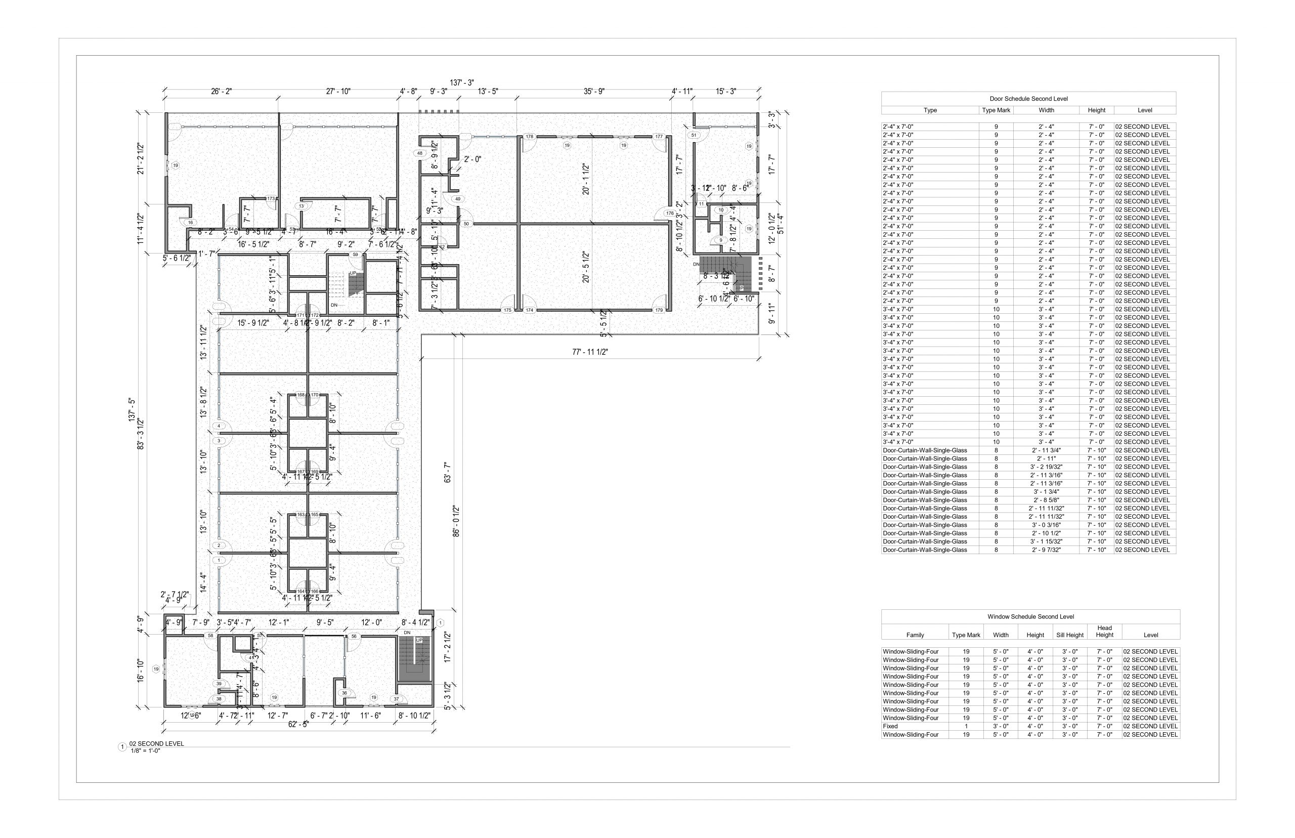
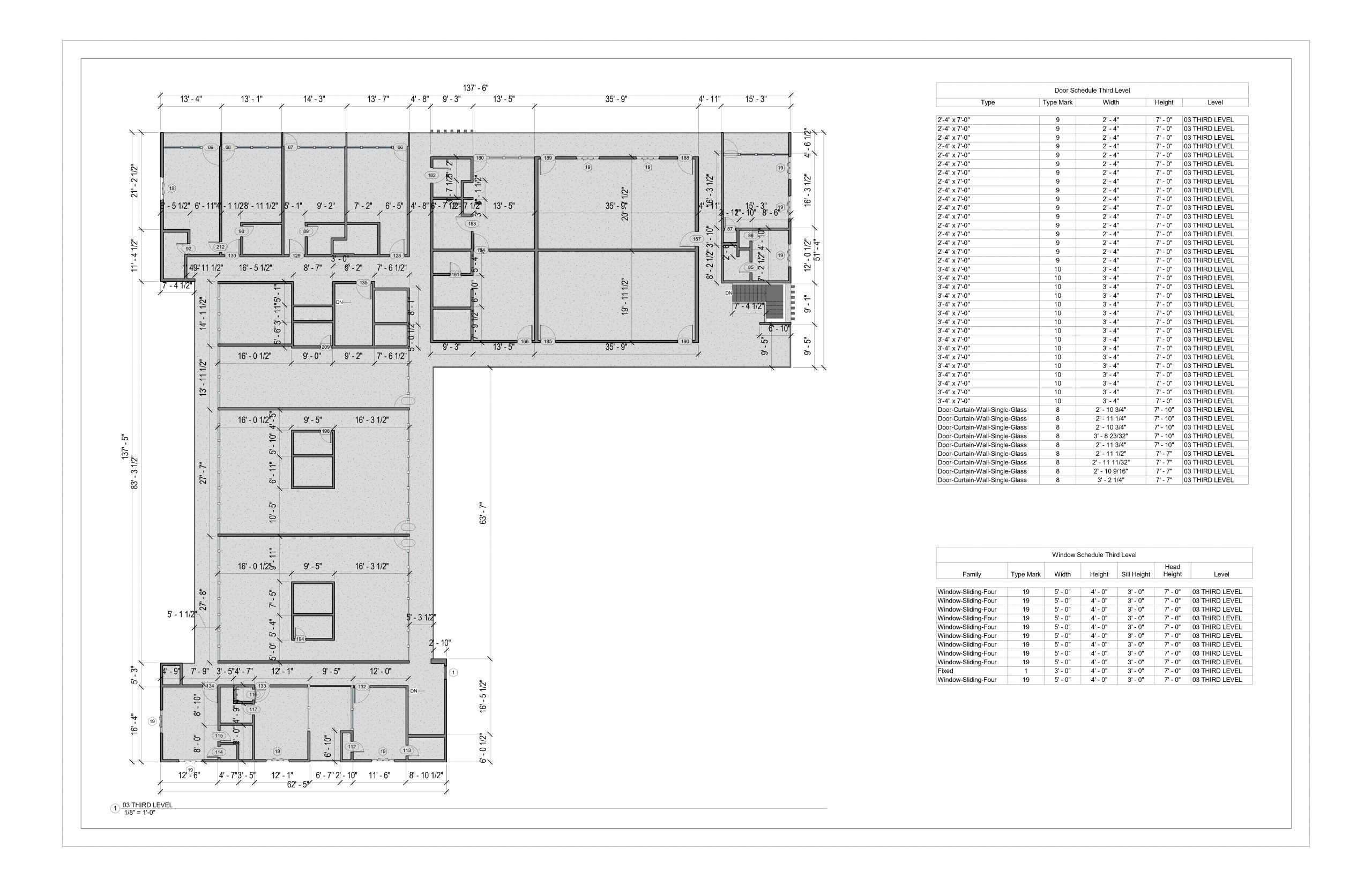
We developed a modular floor plate of 10,000 sq. ft per floor, zoned into:
- Retail bays (Ground floor): Customizable units ranging from 300–1000 sq. ft
- Office zones (1st–4th floors): Configurable workspaces with open-plan options
- Central Core: Staircase, fire escape, elevators, and toilet blocks, replicated on all floors for vertical consistency
- Service shafts for MEP routing planned and reserved using BIM parameters
Revit’s parametric families were leveraged to create flexible room types, partition systems, and fixture placements. Every element—from floor tiles to suspended ceilings—was modeled with accurate materials and metadata.
3. BIM Execution Strategy
A comprehensive BIM Execution Plan (BEP) guided the modeling process. Key modeling strategies included:
- Worksharing and BIM 360 collaboration for multi-disciplinary input
- Level-based modeling to isolate floors for design iterations
- View templates and filters for controlling plan readability and printing standards
- LOD 350/400 accuracy for architectural walls, doors, windows, stairs, and fixtures
Using Revit’s view coordination tools, each design element was validated against clearance codes, ADA standards, and fire safety regulations.
4. MEP and Structural Coordination (Clash-Free Zones)
Even though this project focused on architectural modeling, we integrated MEP placeholders for ducting, risers, electrical panels, and plumbing zones to ensure clash-free corridors and shafts.
- Ceiling height zones were fixed based on HVAC duct and light fixture tolerances
- Electrical raceways and plumbing shafts were aligned with architectural walls
- Reserved spaces for HVAC outdoor units and air handling zones
- Fire exit and smoke clearance paths marked and validated in 3D
The model was shared with MEP and structural teams for Navisworks-based clash detection, ensuring downstream deliverables remained coordinated.
5. Parametric Families and Reusability
ustom Revit families were created for repetitive architectural elements, such as:
- Storefront glazing with customizable mullion spacing
- Sliding and pivot door systems
- Modular workstations and reception counters
- Washroom cubicles with built-in plumbing geometry
All families were developed with type-based parameters, enabling reusability across other commercial projects while retaining flexibility.
6. Documentation and Deliverables
The project’s documentation set was generated entirely from the BIM model, ensuring consistency and data accuracy. Key deliverables included:
- Floor plans, elevations, and sections at 1:50 and 1:100 scales
- Enlarged toilet and staircase details
- 3D coordination views and walkthroughs
- Quantified material take-offs for architectural BOQ preparation
- Color-coded area zoning and occupancy charts
Revit sheets were organized using naming conventions aligned with ISO 19650 standards. Every annotation, dimension, and tag was linked to the model, enabling real-time updates and accurate revision tracking.
7. Rendering and Visualization
We exported the BIM model to Twinmotion and Enscape for real-time rendering and high-quality visualizations. These assets supported the client’s marketing and leasing efforts:
- Photorealistic exterior perspectives with urban context
- Interior views of lobby, corridors, and typical office layout
- Sun study simulations showing shading strategies
- Walkthrough animations for stakeholder presentations
These visualizations were directly synced with the Revit model, ensuring that design changes were immediately reflected in the rendered outputs.
8. Benefits of Using BIM for This Commercial Project
Utilizing BIM with Revit Architecture offered several tangible benefits:
- Reduced design errors through real-time model coordination
- Faster decision-making with accurate 3D visualization
- Detailed scheduling of construction activities with linked elements
- Optimized space usage through iterative design testing
- Lifecycle value with reusable BIM components and easy future upgrades
Conclusion
This project reflects our structured approach to commercial building layout design using BIM and Revit. With a focus on efficiency, clarity, and future-readiness, we deliver architectural solutions that align with real-world construction practices and business goals.
Whether it’s a retail-commercial complex, a multi-tenant office building, or a hybrid development, AI Engineers provides complete BIM solutions tailored for scalable execution, stakeholder collaboration, and lifecycle management.



