Residential Building Layout Design Using BIM Revit Architecture
At AI Engineers, we specialize in delivering precise, fully coordinated residential layouts through BIM (Building Information Modeling) using Autodesk Revit Architecture. This residential project showcases our ability to translate vision into virtual constructible models—bridging architecture, engineering, and construction needs into a single integrated platform.
Whether it’s a single-family villa, a multi-storey apartment building, or a premium gated community, our team ensures that every design is optimized for functionality, aesthetics, and long-term sustainability. The residential project detailed here demonstrates our BIM-enabled design capabilities for a G+6 premium residential apartment.
Project Overview
This residential development involved the architectural design and BIM modeling for a G+6 mid-rise apartment complex, with a basement and podium level. The structure was to accommodate:
- 2BHK, 3BHK, and penthouse units
- Basement parking and services
- Clubhouse and landscaped courtyard
- Vertical circulation cores and shared utilities
- Efficient daylight access and ventilation strategies
Our objective was to develop a BIM-based architectural layout for design, construction documentation, MEP coordination, and facility planning using Revit Architecture at LOD 350/400.
Project Goals
- Maximize unit efficiency and carpet-to-built-up area ratios
- Integrate coordinated design for architecture, structure, and MEP systems
- Provide clash-free models for execution and pre-construction workflows
- Enable scheduling, quantity take-offs, and change tracking via parametric Revit modeling
- Deliver client-ready visuals and walkthroughs from BIM data
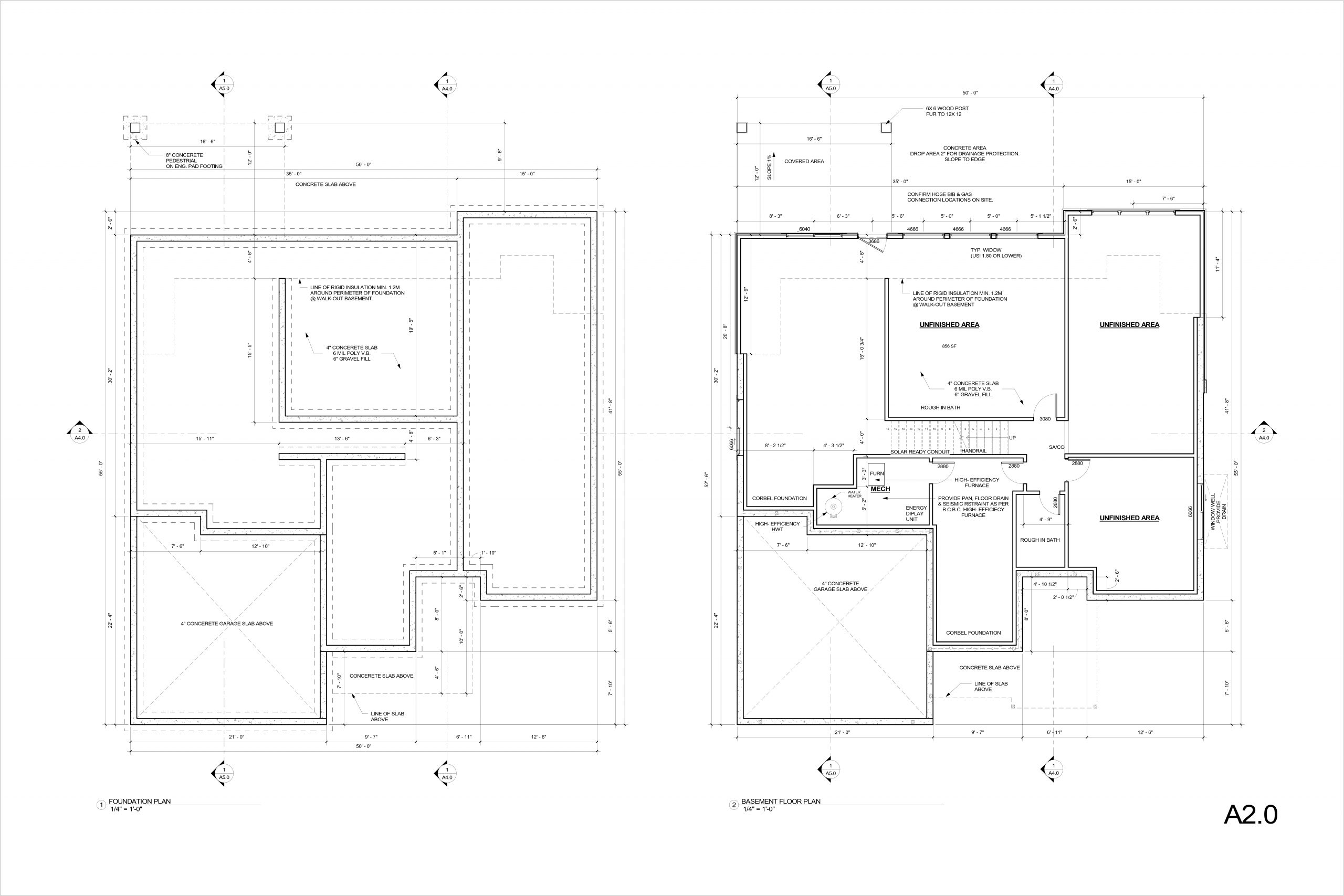
Site Planning and Orientation
Site Planning and Orientation
The project site was a 4500 sq.m plot in a suburban township with access to three roads. A detailed site layout was created in Revit using accurate topography data, regional zoning codes, and landscaping requirements.
- Entry/Exit points were planned for smooth vehicular and pedestrian access
- Basement ramp access positioned to minimize road obstruction
- Landscape buffers and privacy zones modeled in 3D
- Podium slab allowed for surface parking, kids’ play areas, and clubhouse access
Revit’s site tools and shared coordinates were used to align model placement for solar study and cross-ventilation validation.
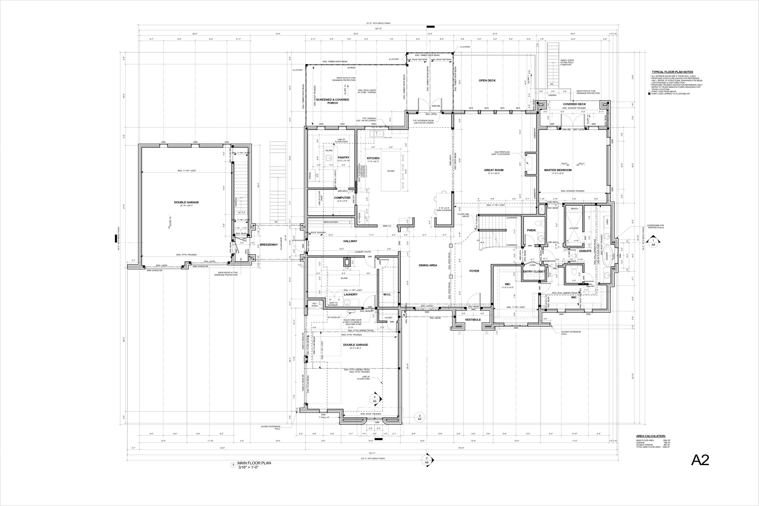
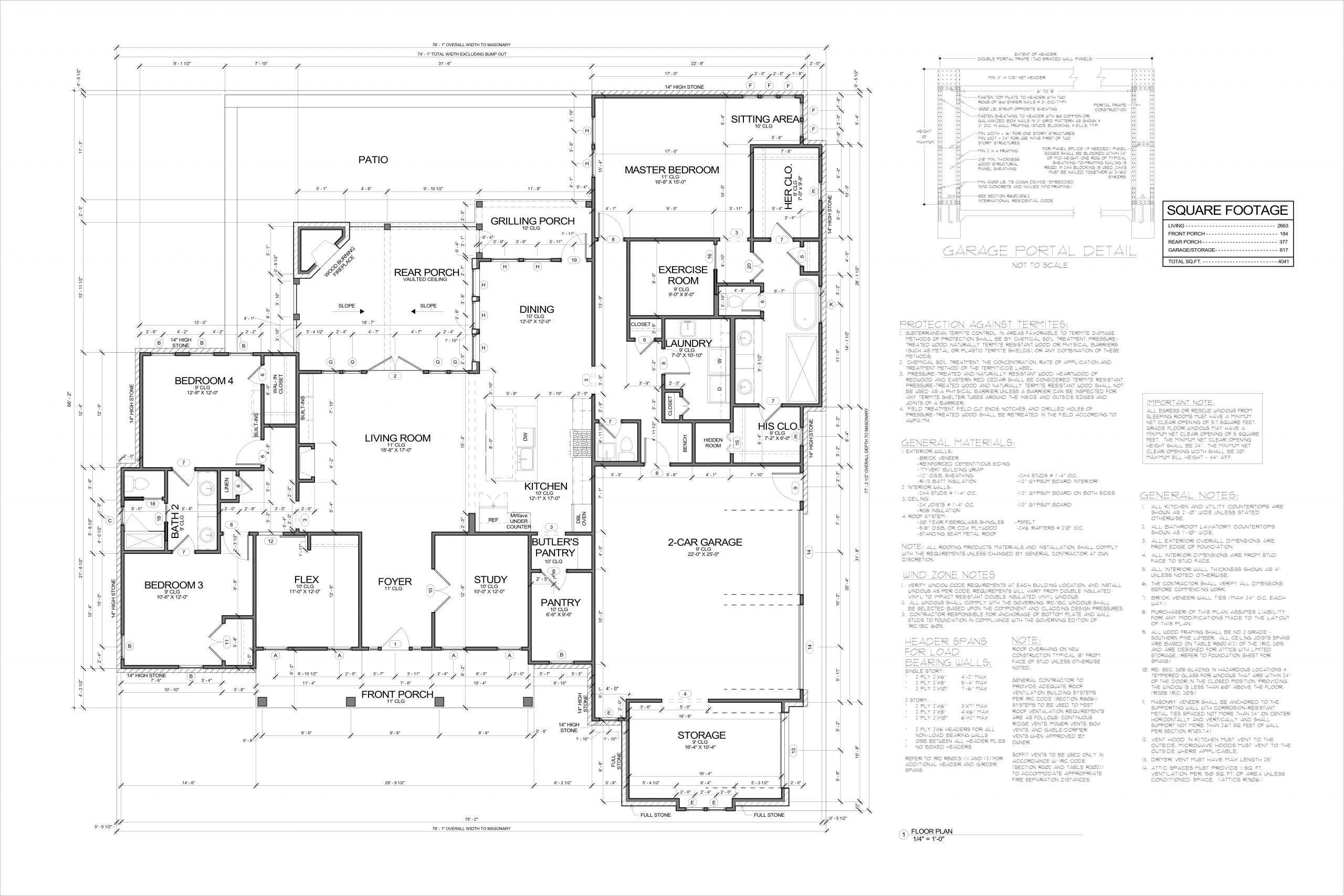
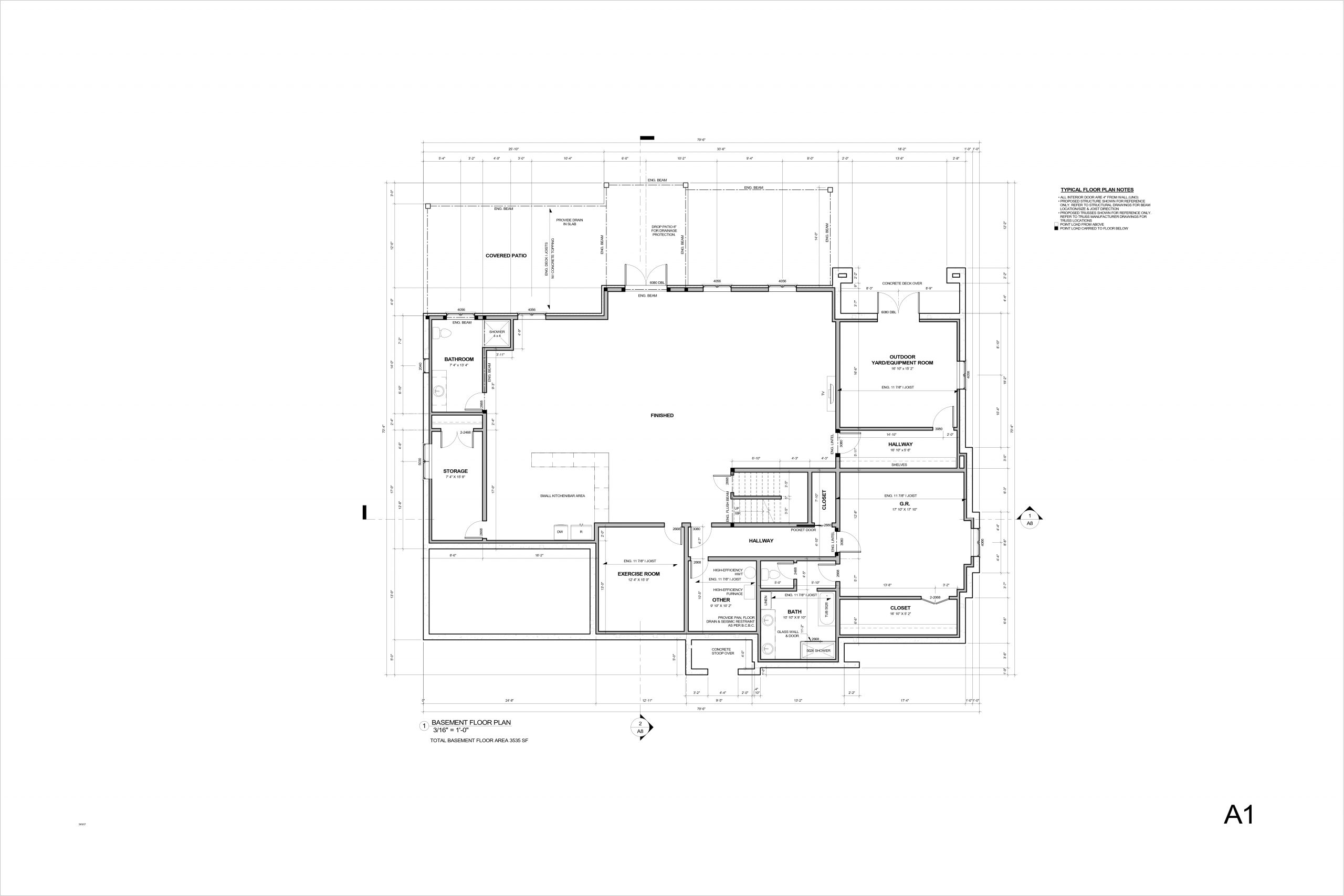
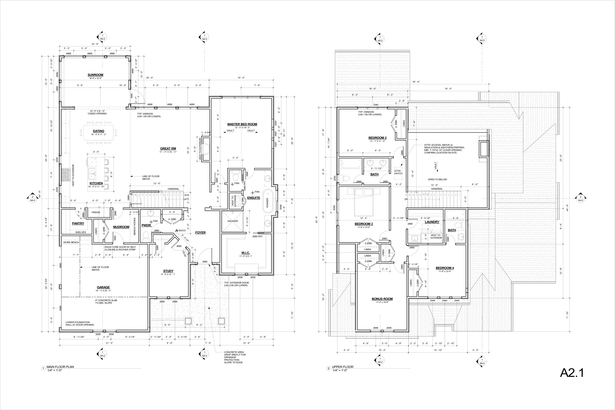
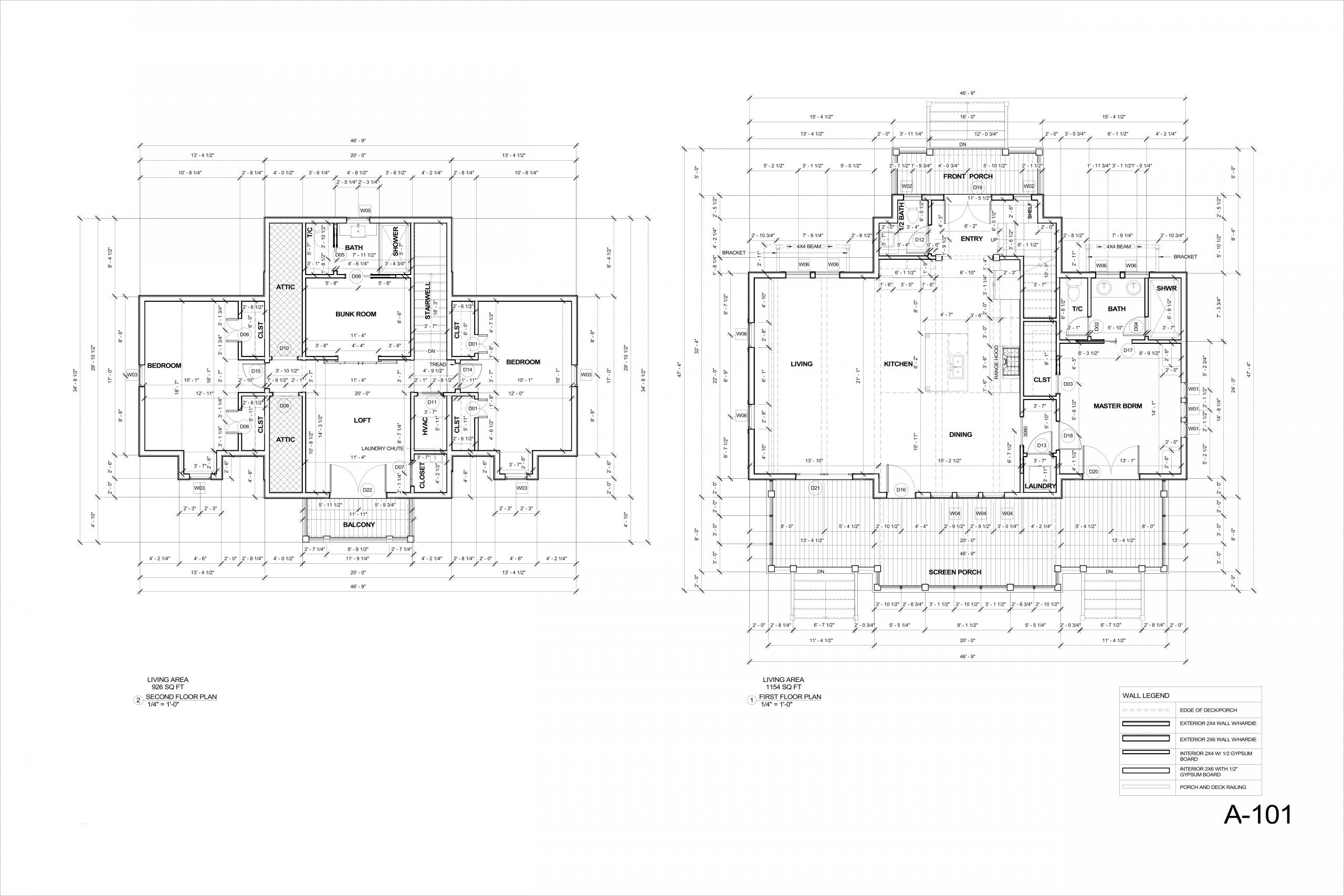
Unit Planning and Floor Configuration
The residential tower included 2BHK and 3BHK layouts configured around dual vertical service cores. Each unit was designed for optimal light access, privacy, and structural logic.
Unit Typologies:
- 2BHK (1050–1150 sq.ft): Living room with attached balcony, 2 bedrooms, kitchen, 2 washrooms
- 3BHK (1350–1500 sq.ft): Larger master bedroom with ensuite, servant toilet, and utility room
- Penthouse (Top Floor): Private terrace, additional family room, extended dining
Revit’s parametric room bounding and area plans were used to model each unit type. Room data included carpet area, lighting zone, ventilation index, and finishing materials—automated through Revit schedules and room tags.
BIM Execution and Strategy
The modeling was executed in Revit using a central workshared model, split into linked files for:
- Architecture
- Structure
- MEPF
- Site & Landscape
- Interior Fit-outs
A formal BIM Execution Plan (BEP) defined:
- File naming standards and versioning
- LOD strategy (350 for architecture, 300–350 for services)
- View templates and sheet organization
- Clash detection protocol using Navisworks
All views—floor plans, elevations, sections, 3D—isometrics—were derived from a single model source, ensuring accuracy and reducing manual drafting.
Vertical Core and Circulation Planning
Each tower had 2 elevators, 1 fire stairwell, and 1 main stairwell, planned in compliance with national building codes and fire norms. All cores were stacked consistently across floors for structural efficiency.
- Lift pits, machine rooms, and parapets modeled with Revit native tools
- Stair families customized to maintain consistent tread-riser ratios across floors
- Emergency egress paths evaluated in 3D views for visibility and code compliance
We used room separation lines and path-of-travel tools in Revit to analyze and optimize movement, corridor width, and access-to-unit ratios.
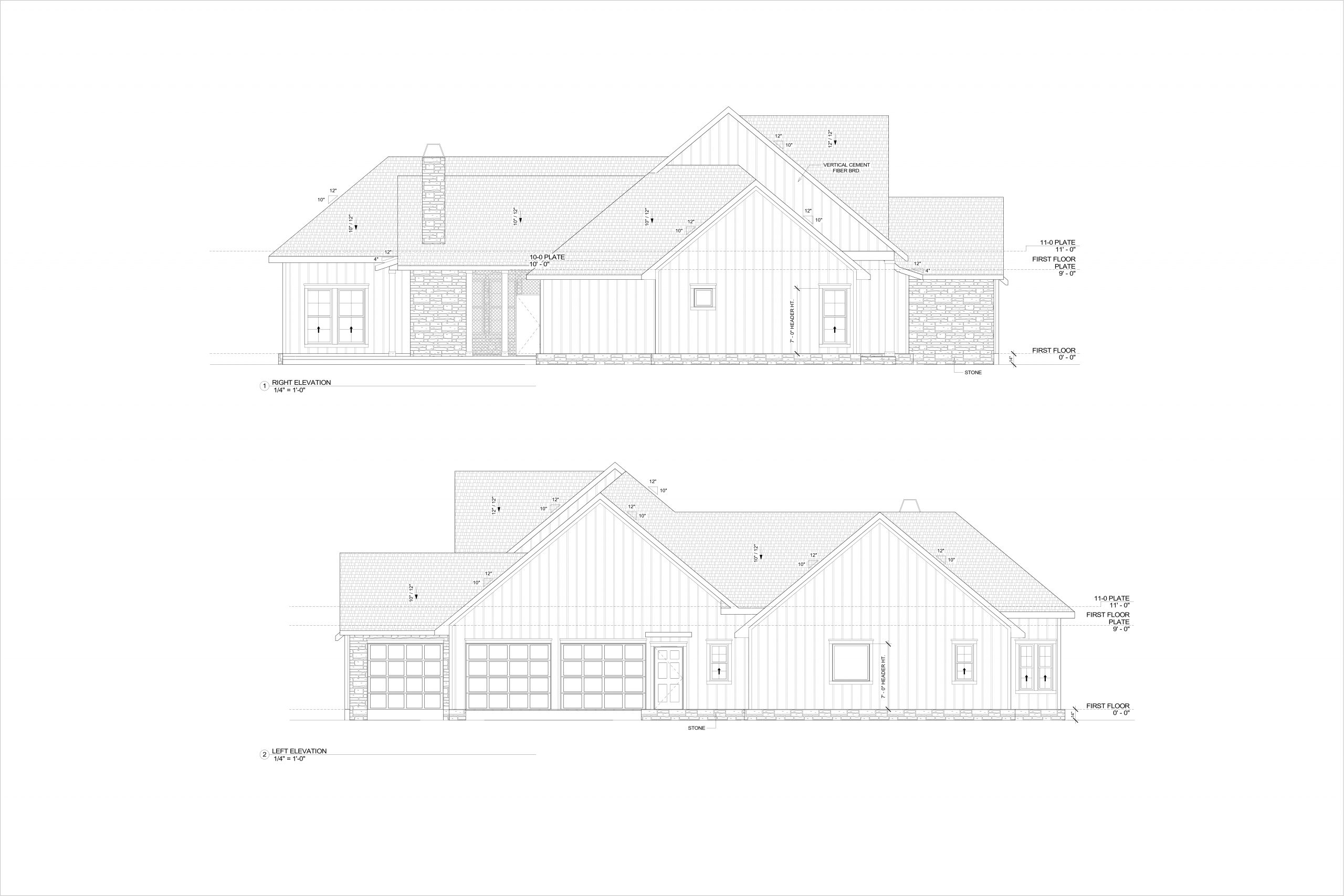
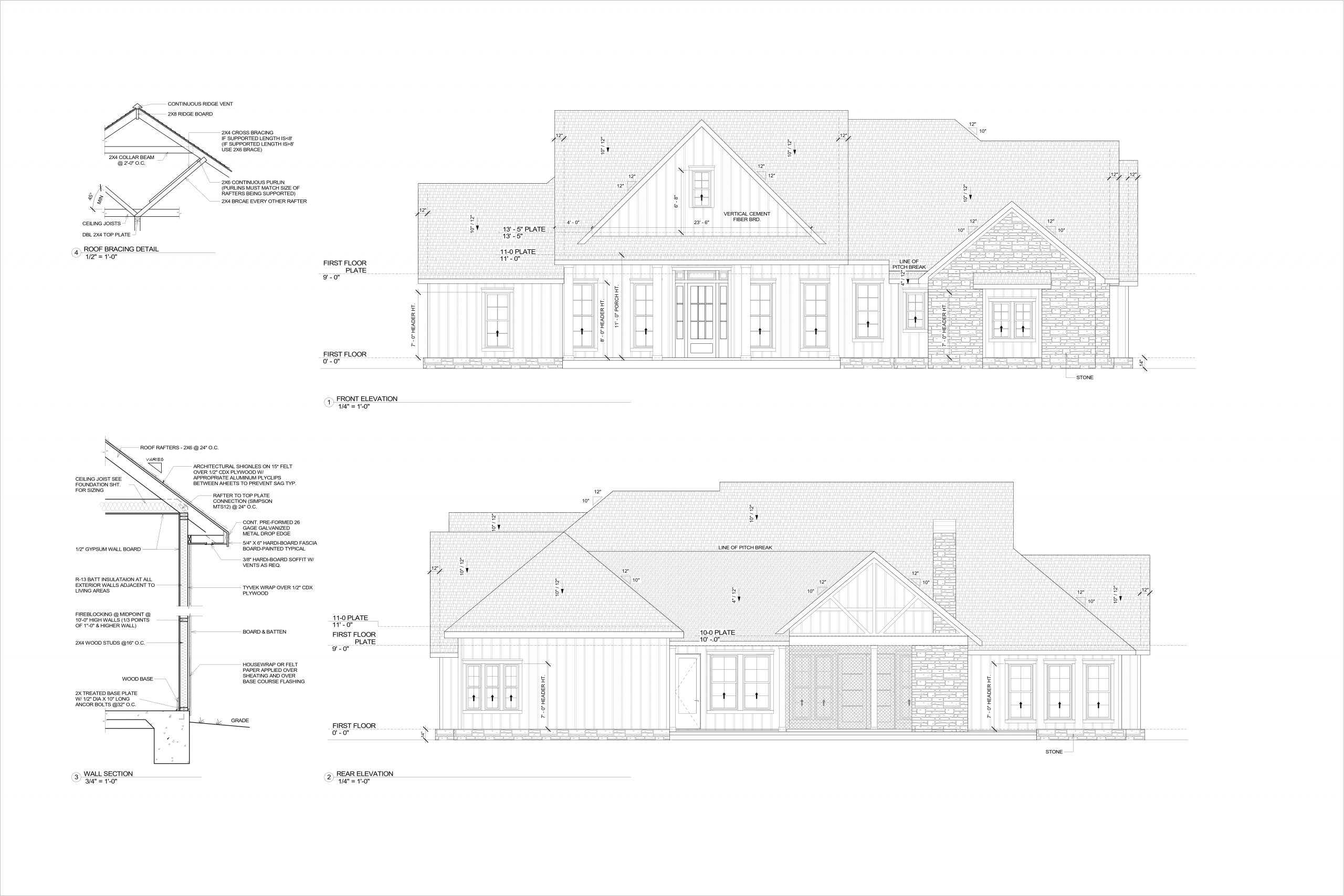
Facade and Material Strategy
The external skin was developed with a balance of thermal performance and aesthetics:
- Double-layered façade with external shading devices
- Balcony projections modeled as structural elements
- Windows and doors with embedded performance metadata (U-value, SHGC)
- External materials mapped with surface textures for realistic visualization
Revit’s material editor and rendering assets allowed for photorealistic previews and material take-off schedules.
MEP and Structural Coordination
Revit MEP and Revit Structure models were linked to the architectural file. Dedicated clash detection workflows were executed using Navisworks, focusing on:
- Bathroom shafts and vertical plumbing risers
- Electrical room placement and DB panel coordination
- HVAC duct clearance above false ceilings
- Structural column positioning vs. partition layout
Clashes were resolved at the design stage, saving time and rework during construction. BIM 360 was used for interdisciplinary communication and cloud-based file access.
Custom Revit Families
We created and deployed reusable Revit families for key residential elements:
- Modular kitchen cabinets
- Bedroom wardrobes and bed sets
- Balcony railings and grills
- Wall-mounted HVAC units and plumbing fixtures
- Lighting fixtures with photometric data
Each family was built with type and instance parameters to allow flexibility in design changes and sizing across units.
Construction Documentation
Complete drawing sets were produced directly from the BIM model, including:
- GFC plans, elevations, and sections
- Floor-wise apartment plans with room tags
- Reflected ceiling plans and tile layout drawings
- Detailed drawings for kitchen, washroom, and balconies
- Quantity schedules: walls, flooring, doors/windows, false ceiling
Revit’s Sheet Manager and annotation tools ensured consistency in dimensioning, tagging, and note placement across the documentation package.
Quantity Take-Off and Cost Planning
Automated material take-offs were generated for:
- Blockwork and plaster
- Flooring and wall finishes
- Door and window schedules
- Sanitary fixtures and CP fittings
- False ceiling and paint finishes
All quantities were exported to Excel with embedded formulas for integration with the client’s cost planning software, making procurement and tendering seamless.
Visualization and Walkthrough
To assist client approvals and marketing, we exported the Revit model to:
- Twinmotion for real-time 3D presentations
- Lumion for photorealistic renderings
- Enscape for live walkthroughs and VR simulations
Deliverables included:
- 3D rendered views of living rooms, kitchens, and bedrooms
- Exterior renderings with landscape context
- Night-time and daylight simulations
- Walkthrough animations with sectional insights
All visuals were updated as per model changes, ensuring fidelity to the final design intent.
Advantages of Using BIM for Residential Design
1. Enhanced Design Accuracy
All elements were dimensionally accurate, reducing errors in execution and ensuring code compliance at design stage.
2. Faster Decision-Making
Live 3D previews and instant area calculations enabled faster approvals from both client and consultant teams.
3. Construction Optimization
Clash-free BIM model reduced site rework, saved costs, and enabled faster construction sequencing.
4. Change Management
Any design change was updated across plans, sections, elevations, and quantity sheets automatically, streamlining revisions.
5. Lifecycle Value
The model was handed over as an as-built asset for facility maintenance and renovation tracking in the future.
Project Summary
This residential project highlights AI Engineers’ BIM expertise in delivering highly detailed, coordinated, and constructible design models using Revit Architecture. From early conceptualization to final construction documentation, our team ensured that the model met all technical standards, client preferences, and practical execution needs.
The use of Revit and BIM methodologies helped minimize delays, optimize material usage, and achieve higher levels of collaboration among consultants, engineers, and clients.
Contact Us
Looking to develop a premium residential project with full BIM integration?
AI Engineers offers specialized BIM design services tailored for modern living spaces—whether it’s vertical housing, luxury villas, or smart townships.



